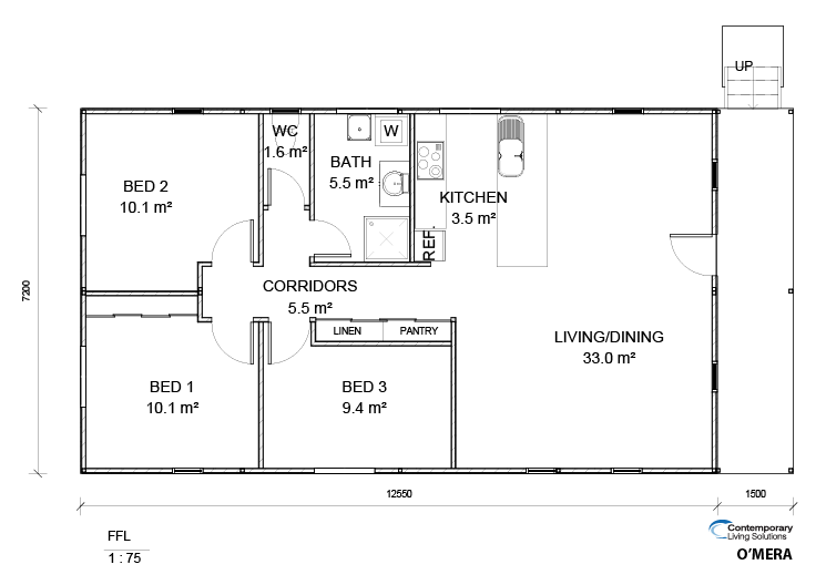
Total area: 101m2
Living area: 90m2
Verandah: 11m2
Energy Efficiency Rating: 7+ stars
Price from: $251,695
- Ideal for extra accommodation
- Fully customisable design
- Customisable kitchen features
- Quality fixtures and fittings
- Ceiling fans throughout
- LED lighting throughout
- Multiple flooring options available
- Solar hot water
- Solar power
- Landscaping and fencing
- Water tank, 3-phase power and bore for rural living



