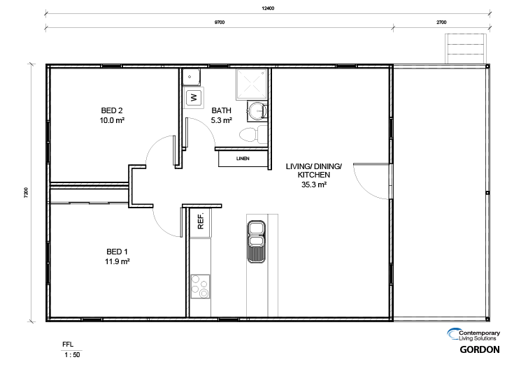
Total area: 90m2
Living area: 70m2
Verandah: 20m2
Energy Efficiency Rating: 7+ stars
Price from: $237,990
- Meets RDU specificatons for rural blocks without Development Consent
- Ideal for extra accommodation
- Fully customisable design
- Customisable kitchen features
- Quality fixtures and fittings
- Ceiling fans throughout
- LED lighting throughout
- Multiple flooring options available
Options available (additional cost):
- Solar hot water
- Solar power
- Landscaping and fencing
- Water tank, 3-phase power and bore for rural living
Download Brochure
Download our Build Specifications