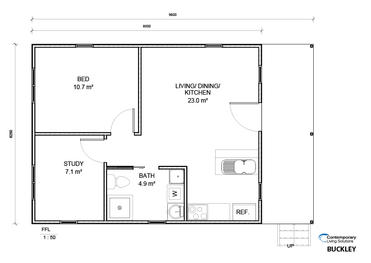
Total area: 63m2
Living area: 50m2
Verandah: 13m2
Energy Efficiency Rating: 7+ stars
Price from: $188,280
- Meets RDU specificatons for town and rural blocks without Development Consent
- Ideal size for a "granny flat" or for guests
- Fully customisable design
- Customisable kitchen features
- Quality fixtures and fittings
- Ceiling fans throughout
- LED lighting throughout
- Multiple flooring options available
Options available (additional cost):
- Solar hot water
- Solar power
- Landscaping and fencing
- Water tank, 3-phase power and bore for rural living
Download Brochure
Download our Build Specifications